5XS 320 011 Shutter Mechanism for 1000mm Metal Clad Switchgear
5XS 320 011 Shutter for 1000mm Metal Clad Switchgear Safety
Description du produit
Model: 5XS.320.011 (Compatible with KYN28 series)
The 5XS.320.011 shutter mechanism is an essential safety component engineered for 1000mm width medium voltage air insulated switchgear. While specifically optimized for KYN28 series panels, this mechanism is fully compatible with global IEC 62271 200 standard metal clad switchgear. It provides an automatic physical barrier to shield live static contacts, ensuring maximum protection for operators during maintenance.
Key Product Advantages
Automatic Safety Protection: The shutter closes instantly as the circuit breaker trolley moves to the test or isolated position, preventing accidental contact with high voltage parts.
Five Proof Interlock Compliance: A vital component in the switchgear safety system, ensuring the shutter only opens when the VCB trolley is correctly pushed toward the working position.
Smooth Linkage Drive: Features a precision scissor linkage mechanism driven by the trolley movement, ensuring jam free and reliable operation without external power.
Global Standard Maintenance: Effectively maintains the IP2X protection rating of the switchgear interval, meeting international safety requirements for modern power grids.
Product Specifications
Applicable Cabinet Width: 1000mm
Compliance: IEC 62271 200 standard
Material Class: Available in PM class Metallic or PI class Insulating options
Guiding System: High precision aluminum alloy rails or four side roller positioning
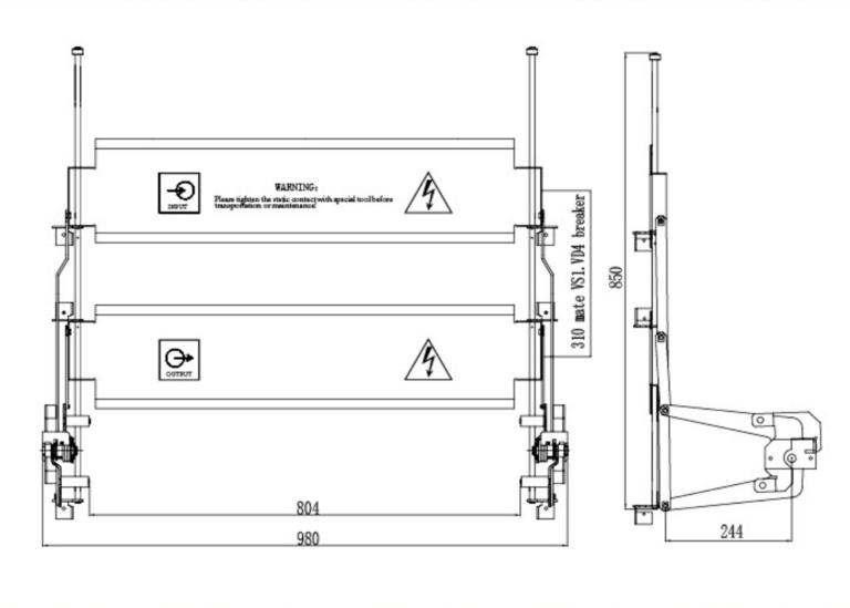
Assembly sheet ( unit: mm )
| NO. | Objet | Code | Qty (pcs/ set) |
| 1 | Right supporting frame | 8XS.123.276 | 1 |
| 2 | Right connecting plate | 5XS.235.012 | 1 |
| 3 | Indicating cord | 8XS.866.014 | 1 |
| 4 | Left connecting board | 5XS.235.013 | 1 |
| 5 | Gasket φ6 | GB97.1-85 | 16 |
| 6 | Elastic gasket φ6 | GB5783-86 | 10 |
| 7 | Bolt M6×12 | 8XS.13.275 | 10 |
| 8 | Left supporting frame | 5XS.174.281 | 1 |
| 9 | Connecting plate Welding | 5XS.320.273 | 2 |
| 10 | Underside shuttler | 8XS.320.273.1 (200mm shorter) | 1 |
| 8XS.320.273.2 (1000mm insulation) | |||
| 11 | Block cord | DK-10 | 8 |
| 12 | Supporting frame | 8XS.123.278 | 3 |
| 13 | Connecting plate Welding | 5XS.174.282 | 2 |
| 14 | Indicating cord | 5XS.866.012 | 1 |
| 15 | Indicating cord | 5XS.866.013 | 2 |
| 16 | Supporting frame | 5XS.123.277 | 3 |
| 17 | Nut M6 | GB6170-86 | 6 |
| 18 | Upside shutter | 8XS.320.274 | 1 |
| 8XS.320.274.1 (200mm shorter) | |||
| 8XS.320.274.2 (1000mm insulation) | |||
| 19 | Guide bar | 8XS.324.272 | 2 |
| 20 | Limit sleeve | 8XS.210.011 | 2 |
Dessin



















